choulet-architecte-logo-2choulet-architecte-logo-2choulet-architecte-logo-2choulet-architecte-logo-2
    • Accueil
    • AGENCE
      • Notre équipe
      • Bureaux
      • Nos moyens
    • Prestations
    • Réalisations
      • Logements
        • Individuels
        • Collectifs
      • Bureaux & Bâtiments professionnels
      • Bâtiments & Projets publics
      • Exemples de projets en cours
    • Réseaux partenaires
    • Contact
      OGEC PASSERELLE
      Création d’une passerelle d’accès à un collège
      12 octobre 2022
      SCLE 2019
      Extension d’un bâtiment de bureaux
      11 octobre 2022

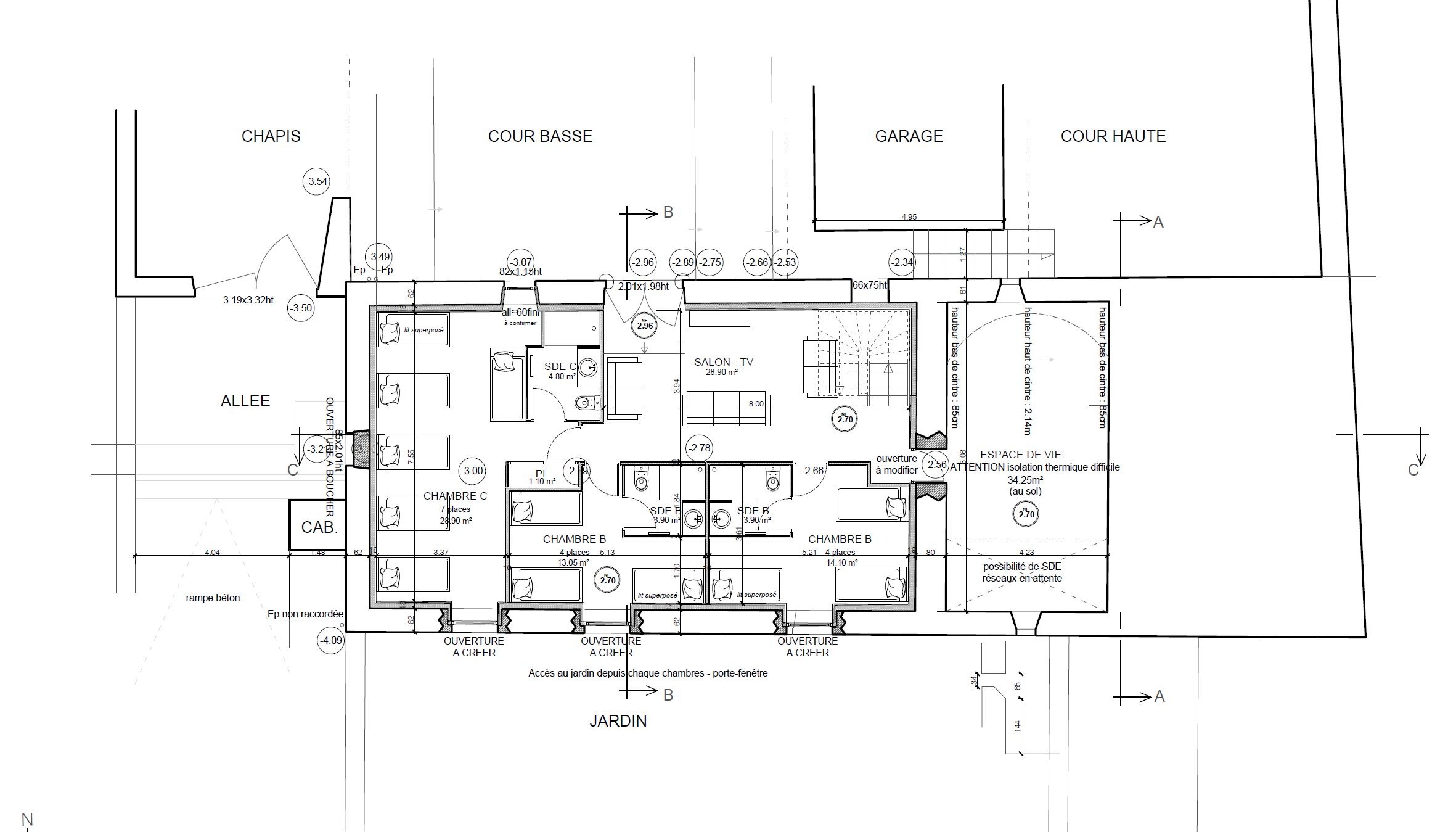
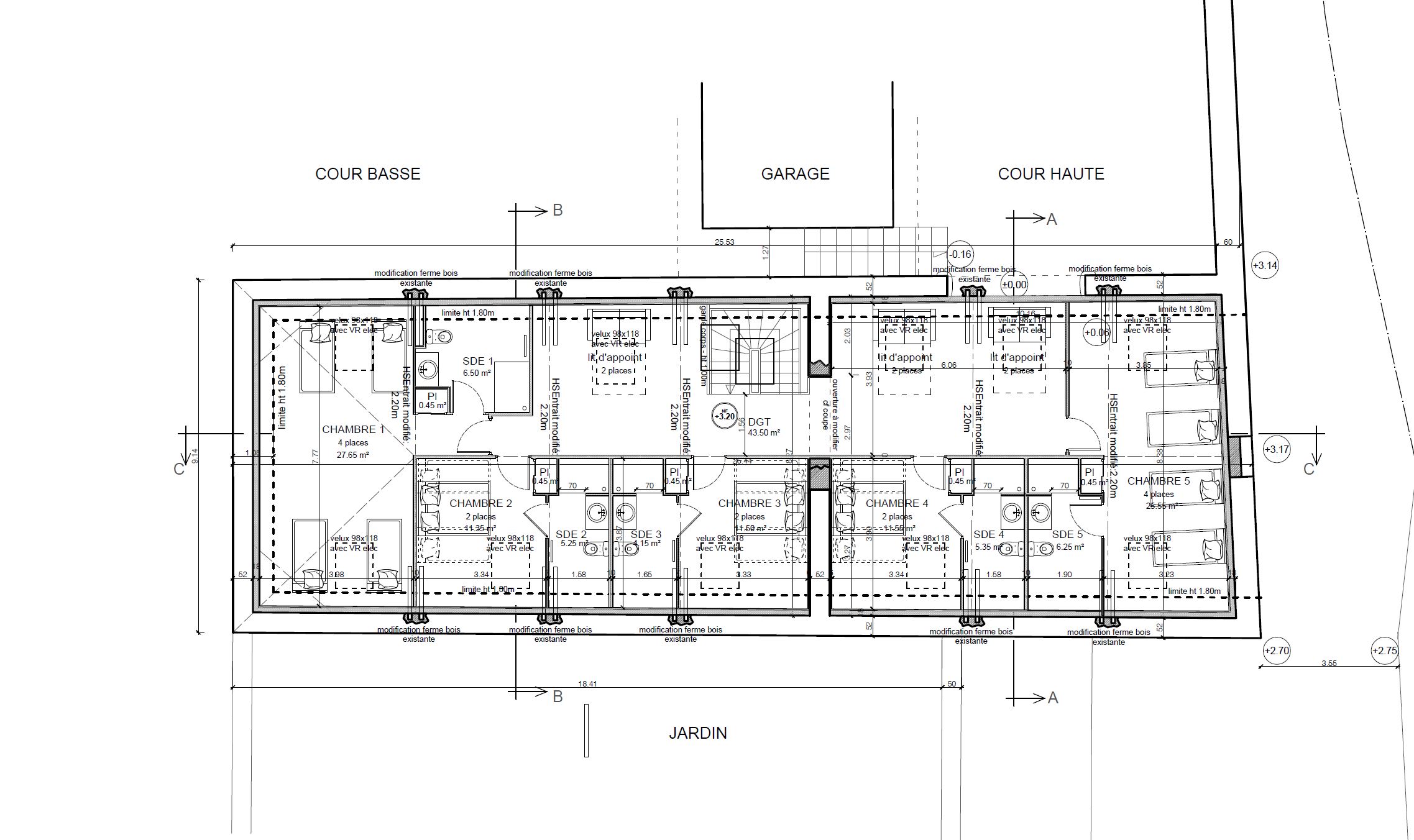
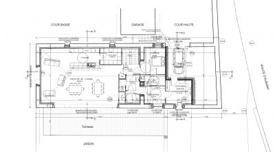
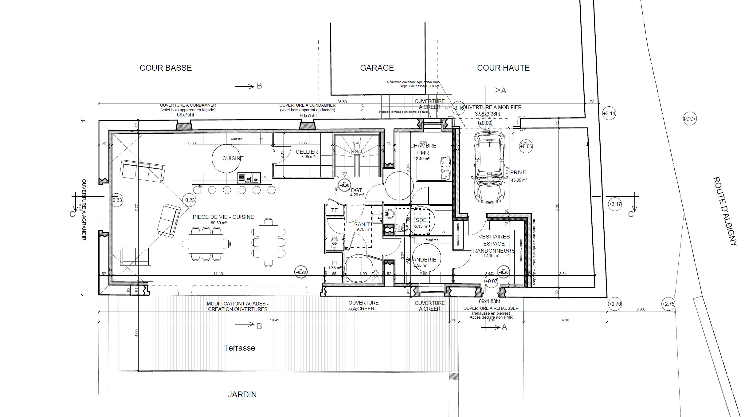
      Aménagement d’un gîte de groupe de + de 20 personnes dans un bâtiment existant

      Maitre d’ouvrage : Particulier
      Mission : Permis de construire
      Surface : 460m²
      Localisation : 69770 MONTROTTIER (Albigny)
      Année : 2021
      Montant des travaux : …

      CHAVEROT BARONE
      CHAVEROT BARONE
      CHAVEROT BARONE

      CHAVEROT BARONE
      CHAVEROT BARONE
      CHAVEROT BARONE

      Share
      Aménagement d’un gîte de groupe de + de 20 personnes dans un bâtiment existant
      © 2021 Choulet Architecte - Mentions légales - Politique de confidentialité - Gestion des cookies - Mises à Jour web régulières : LudiKreation