PRESTATIONS
A l’issue du premier rendez-vous lors duquel nous faisons connaissance et échangeons sur votre projet, vous recevrez une offre de mission correspondant à vos besoins. Les prestations sont à la carte et peuvent aller d’une simple faisabilité/esquisse à une mission complète pour l’intégralité du projet jusqu’à la remise des clés.
EXEMPLES DES DIFFERENTES MISSIONS :
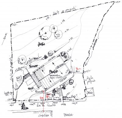
Etude de faisabilité :
Nous étudions la faisabilité de votre projet afin de définir ce qu’il est possible de faire au vu des réglementations et de votre budget.
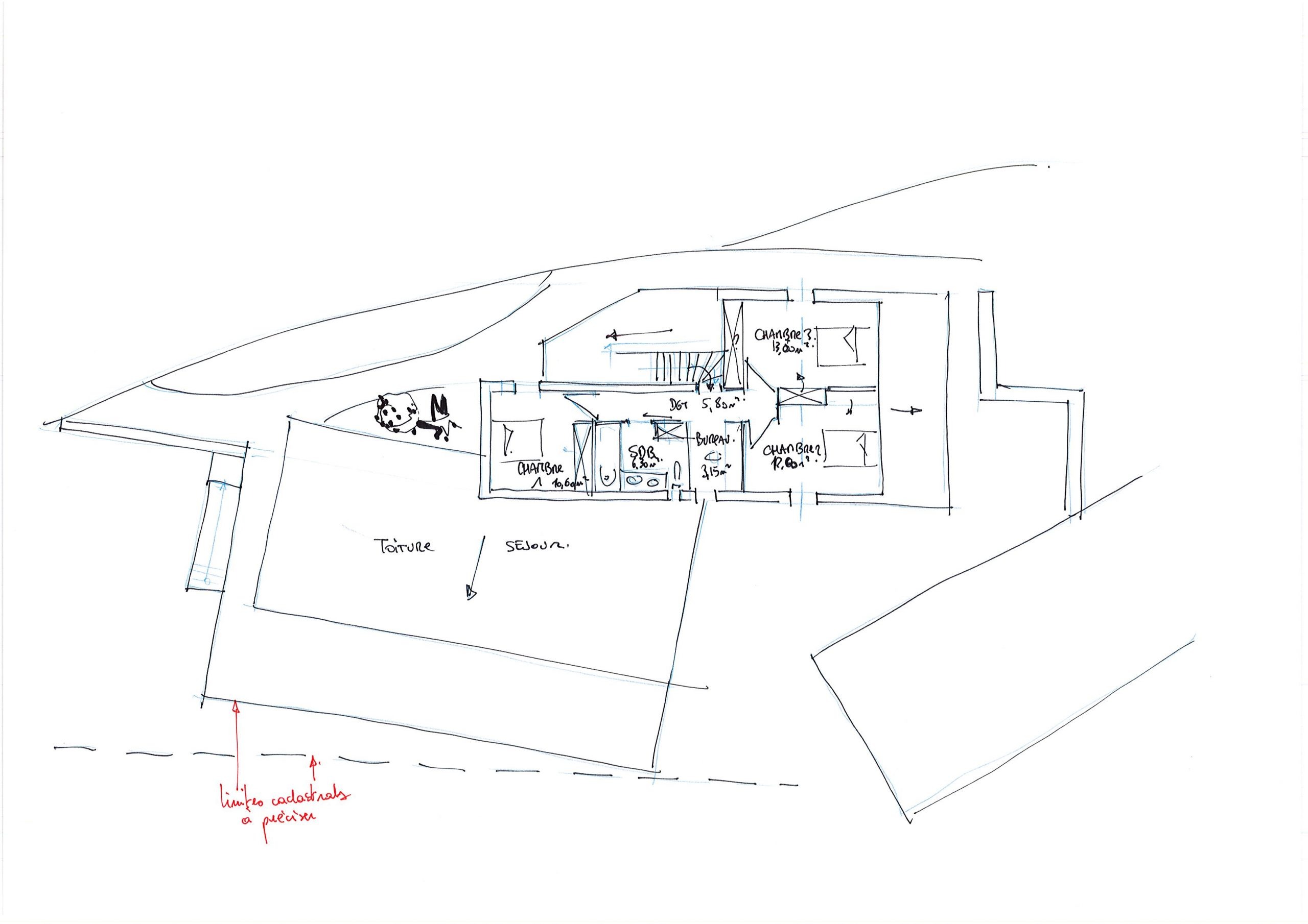
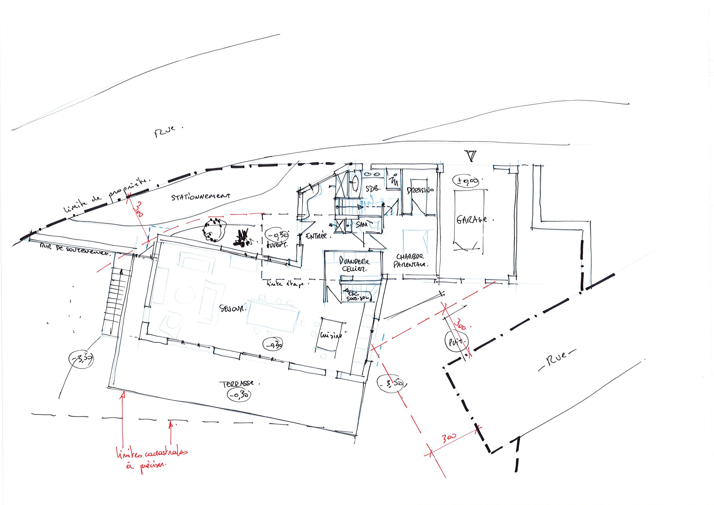
Exemples esquisses :
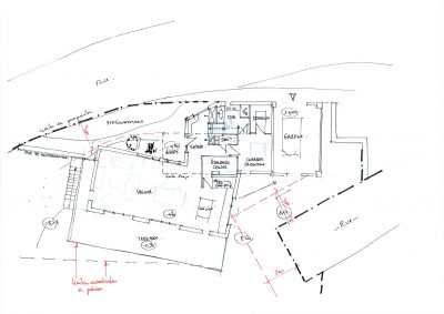
Avant-Projet :
Nous vous proposons un projet personnalisé que nous présentons en 2D pour les plans et 3D pour des perspectives qui vous permettent de vous projeter.
Exemples EDL :
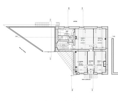
Exemples Conception 3D :
Dossiers Administratifs :
Nous assurons le montage des divers dossiers (permis de construire, déclaration préalable, autorisation de travaux, Agendas d’Accessibilité Programmée…)
Consultation des entreprises :
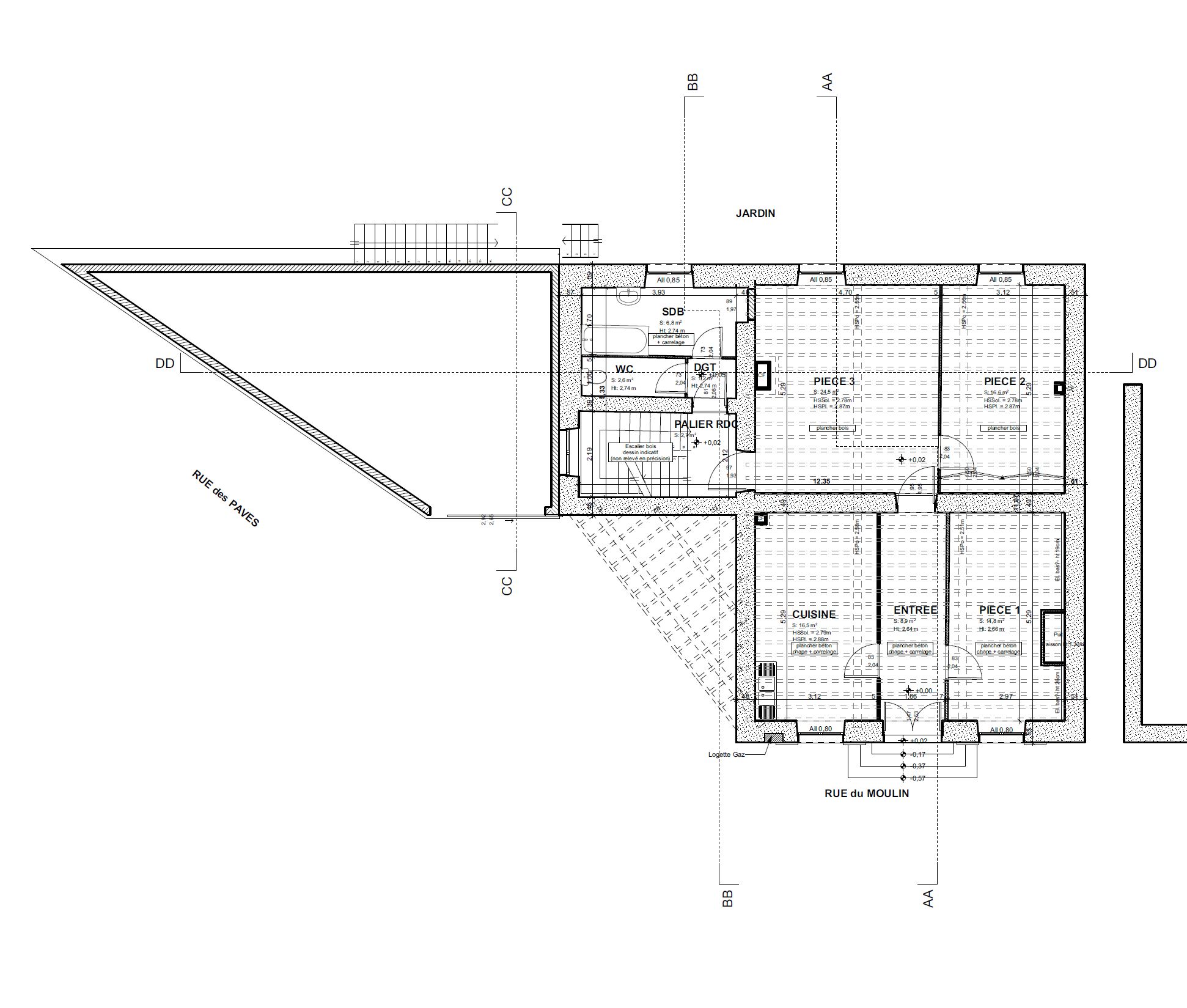
D’après l’avant-projet, nous réalisons des plans détaillés à fournir aux entreprises pour l’établissement des devis de votre projet.
Si besoin, nos partenaires économiste, bureaux d’études fluides et structures peuvent établir des descriptifs quantitatifs, pour un comparatif plus facile du retour des entreprises.
Suivi de chantier :
Nous gérons avec vous les entreprises retenues, maitrisons l’avancement de votre chantier jusqu’à la livraison conformément au planning établi et au respect des normes constructives.
Accompagnement ponctuel :
Nous proposons une mission d’accompagnement et de conseil au temps passé à n’importe quelle étape de votre projet : aide à l’aménagement, choix des matériaux, des entreprises…. Vous permettant de bénéficier de notre expertise ponctuellement et sans engagement.

ÊTRE À L'ÉCOUTE
de nos clients du premier rendez vous à la réception de chantier.

S'ADAPTER
aux besoins de nos clients et ne proposer que les missions nécessaires.

CHOISIR DES ENTREPRISES LOCALES
que nous connaissons ou que nos clients nous proposent.























