choulet-architecte-logo-2choulet-architecte-logo-2choulet-architecte-logo-2choulet-architecte-logo-2
    • Accueil
    • AGENCE
      • Notre équipe
      • Bureaux
      • Nos moyens
    • Prestations
    • Réalisations
      • Logements
        • Individuels
        • Collectifs
      • Bureaux & Bâtiments professionnels
      • Bâtiments & Projets publics
      • Exemples de projets en cours
    • Réseaux partenaires
    • Contact
      2142
      Réhabilitation d’un bâtiment existant pour création de 3 logements (69)
      13 décembre 2018
      2130
      Rénovation d’un bâtiment existant pour 3 logements collectifs (69)
      13 décembre 2018

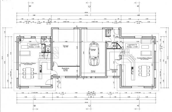
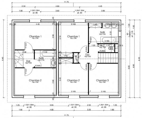
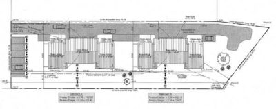
      Construction de quatre logements (durée des travaux 8 mois) (42)

      Maitre d’ouvrage : Particulier
      Mission : AVANT PROJET DEFINITIF / PERMIS DE CONSTRUIRE
      Surface :
      2 T3 de 75,00 m²+ (Annexes 35,00 m²) Surf habitable
      2 T4 de 95,00 m²+ (Annexes 45,00 m²) Surf habitable
      Localisation : 42810 ROZIER EN DONZY
      Année : 2003
      Montant des travaux : N.C.

      2136
      2136
      2136

      2136
      2136

      Share
      Construction de quatre logements (durée des travaux 8 mois) (42)
      © 2021 Choulet Architecte - Mentions légales - Politique de confidentialité - Gestion des cookies - Mises à Jour web régulières : LudiKreation